Signed in as:
filler@godaddy.com
Signed in as:
filler@godaddy.com

Estimated to be priced in upper $700,000s.
This home is currently under construction, with an estimated completion date around the end of December 2025 .
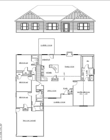
~ Enormous, 13.62 acre lot with lake
~ Located in beautiful countryside of Haralson County, GA
~ 4 Bedroom, 3 Bathrooms - approx. 2,200 sqft. living space on main floor
~ Partially finished basement adding extra living space, kitchenette, bedroom and bathroom
~ Open concept floor plan
~ Kitchen features stainless steel appliances, custom cabinets and a large island
You do not want to miss out on this opportunity to own this beautiful home in the still-quiet setting of Bremen, Georgia. Browse the photos below of a previous build of this floorplan. Please click below to sign-up to be notified as soon as this home is officially on the market.
Contact us today if you would like more information on this house.







Gentry Homes & Development, Inc.